


















Spatiu comercial Judetean-Carpatilor
Brasov, Judetean
612.282€ + TVA
Camere
1
Suprafata utila
185.54 mp
Suprafata construita
216.11 mp
An constructie
2025
- ID:P11845
- Nr. camere:1
- S. utila:185.54 mp
- S. construita:216.11 mp
- S. vitrina:11.60 m
- Comp.:Open space
- Nr. bai:2
- An constructie:2025
- Structura rezistenta:Beton
- Tip imobil:Bloc
- Regim inaltime:S+P+12
Descriere
Spațiu comercial – Cosmopolit Zenit | Str. Carpaților, Brașov
Spațiu comercial situat în Ansamblul Rezidențial Cosmopolit Zenit, pe strada Carpaților, în zona Județean – Răcădău, o zonă semicentrală a Brașovului, cu trafic intens și vizibilitate foarte bună.
Spațiul se predă semifinisat (la gri), oferind libertate totală de amenajare în funcție de specificul activității desfășurate.
Caracteristici principale:
*poziționare excelentă, cu expunere stradală
*trafic pietonal și auto ridicat
*toate utilitățile disponibile
*sistem individual de încălzire și răcire
*flexibilitate maximă pentru compartimentare și design interior
Amenajarea interioară rămâne în sarcina viitorului proprietar, permițând personalizarea completă a spațiului pentru retail, servicii, birouri, cabinet sau alte activități comerciale.
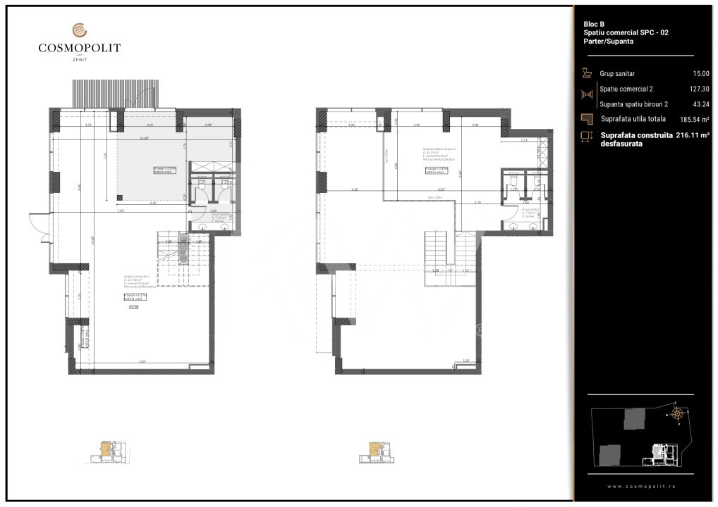
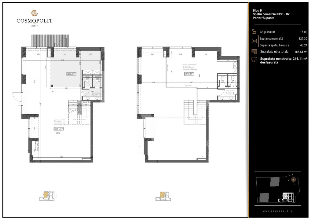
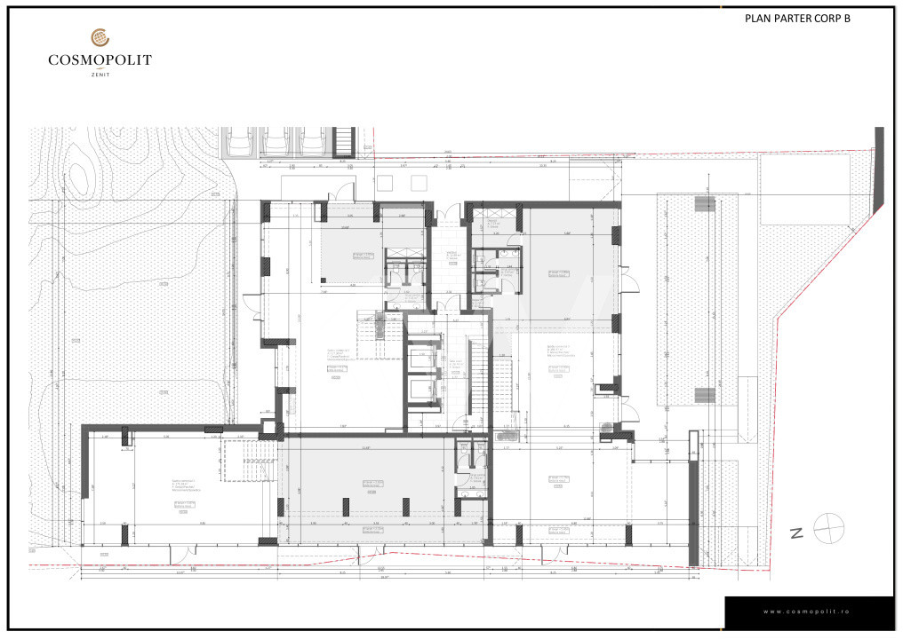
Spațiul Comercial 2 bl. B
*Nivel: parter+mezanin
*Suprafață utila: 185,54 mp
*Suprafață construită: 216,11 mp
*Vitrină: 11,6 ml
Citeste mai mult
Spațiu comercial situat în Ansamblul Rezidențial Cosmopolit Zenit, pe strada Carpaților, în zona Județean – Răcădău, o zonă semicentrală a Brașovului, cu trafic intens și vizibilitate foarte bună.
Spațiul se predă semifinisat (la gri), oferind libertate totală de amenajare în funcție de specificul activității desfășurate.
Caracteristici principale:
*poziționare excelentă, cu expunere stradală
*trafic pietonal și auto ridicat
*toate utilitățile disponibile
*sistem individual de încălzire și răcire
*flexibilitate maximă pentru compartimentare și design interior
Amenajarea interioară rămâne în sarcina viitorului proprietar, permițând personalizarea completă a spațiului pentru retail, servicii, birouri, cabinet sau alte activități comerciale.
Spațiul Comercial 2 bl. B
*Nivel: parter+mezanin
*Suprafață utila: 185,54 mp
*Suprafață construită: 216,11 mp
*Vitrină: 11,6 ml
Specificatii
Curent
Apa
Canalizare
Gaz
Centrala proprie
Aer conditionat
Bloc izolat termic
Alexandru Vacaru
0723072812
Esti interesat de aceasta proprietate ?